Oferta inwestycyjna
„Studium chłonności działki budowlanej”
Nota prawna
Wszelkie materiały (treści, teksty, ilustracje, zdjęcia itp.) przedstawione w domenie: RadostowicePark.pl/oferta inwestycyjna są objęte prawem autorskim i podlegają ochronie na mocy „Ustawy o prawie autorskim i prawach pokrewnych” z dnia 4 lutego 1994 r. ( Dz.U.2021.1062 ). Kopiowanie, przetwarzanie, rozpowszechnianie tych materiałów w całości lub w części, bez zgody autora oraz zleceniodawcy projektu, jest zabronione.

Studium chłonności działki budowlanej, to opracowanie kluczowe dla inwestorów i deweloperów, które pozwala zminimalizować ryzyko i nieprzewidziane koszty, precyzyjnie określając, co i jak można wybudować na tej nieruchomości.

Zgodnie z planem miejscowym, teren oznaczony został symbolem F1MN z podstawowym przeznaczeniem pod zabudowę jednorodzinną.

Wymagana intensywność zabudowy – nie mniej niż 0,1 oraz nie więcej niż 0,6. Plan miejscowy ustala minimalną wielkość działek dla poszczególnych typów zabudowy oraz szerokość frontów działek.


Dla zabudowy mieszkaniowej, minimalna powierzchnia działki wynosi:

  1. 700 m², dla zabudowy jednorodzinnej wolnostojącej,
  2. 700 m², dla zabudowy jednorodzinnej wolnostojącej,
  3. 350 m² dla zabudowy szeregowej.

Szerokość frontów działek odpowiednio:

  1. 18,0 m,
  2. 14,0 m
  3. 6,0m.

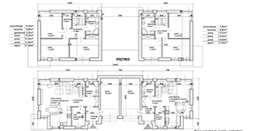
Opracowanie zawiera dwie koncepcje zagospodarowania terenu. Koncepcja zagospodarowania wariant 1 przedstawia projekt zabudowy jednorodzinnej (1) domkami jednorodzinnymi wolnostojącymi, w zabudowie bliźniaczej i szeregowej.

Zastosowano dwa typy budynków zabudowy szeregowej różniące się szerokością zabudowy wynikającą gabarytu działki.

Koncepcja zagospodarowania wariant 2 przedstawia projekt zabudowy jednorodzinnej (2) domkami jednorodzinnymi wolnostojącymi oraz w zabudowie bliźniaczej. Projektowane budynki w wariancie 2 różnią się gabarytem od zabudowy wariantu 1 – są mniejsze, z ograniczoną powierzchnią, ilością balkonów i tarasów.

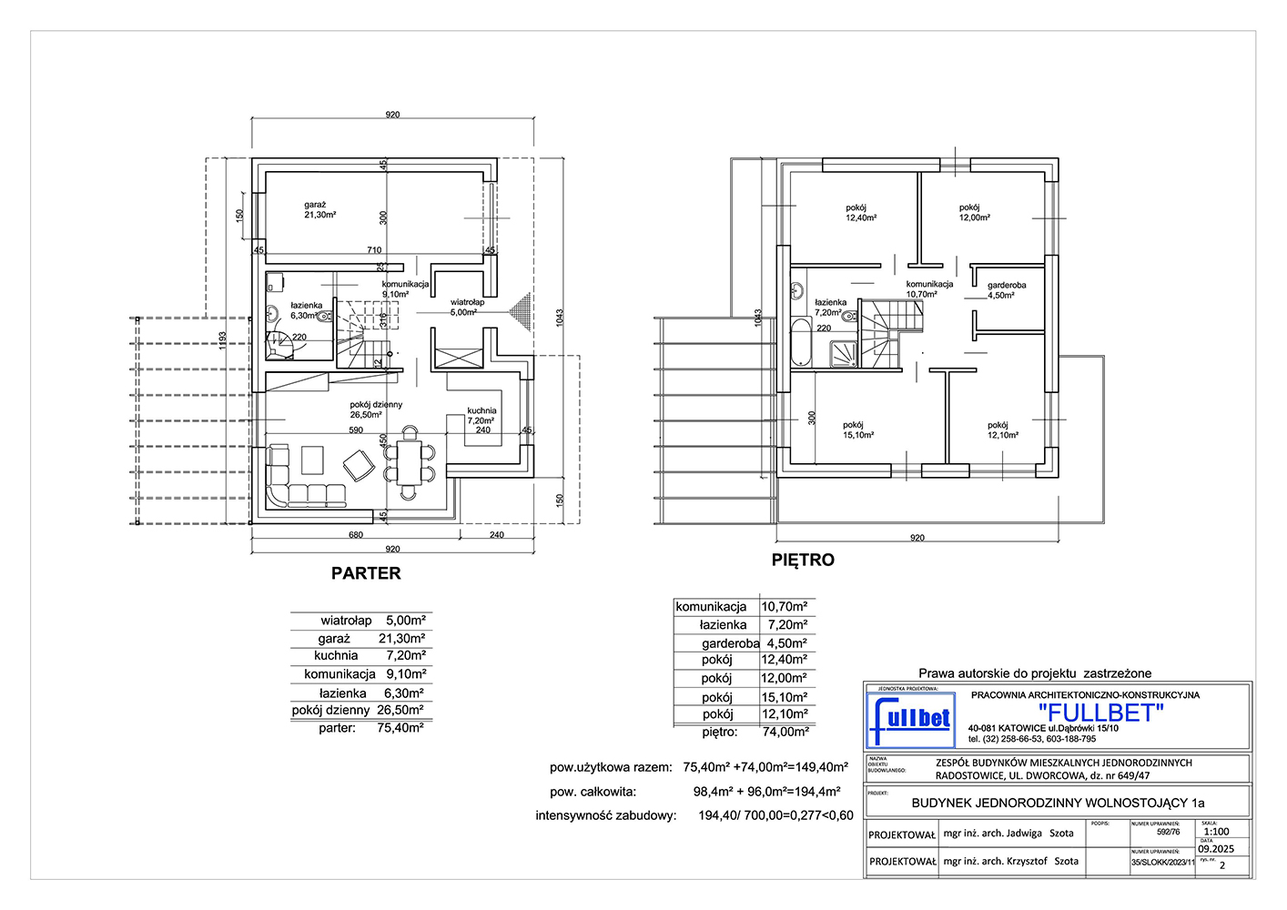
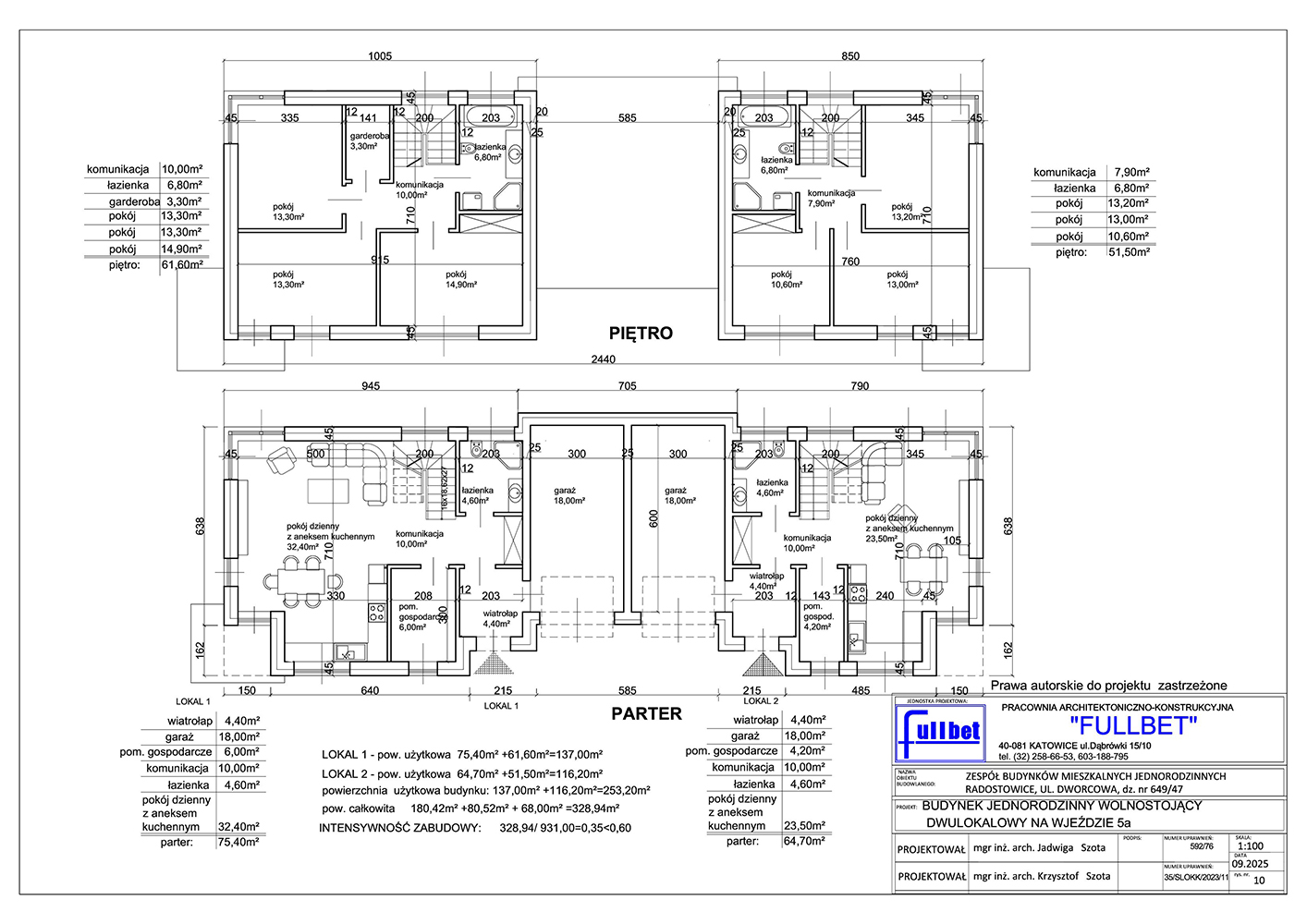
Budynki o zmniejszonym gabarycie mogą być zastosowane w wariancie zagospodarowania 1. Budynki te zostały oznaczone symbolem odpowiednio 1a, 1b, 4a. W wariancie zagospodarowania 2, na wjeździe, zaprojektowano dom jednorodzinny dwulokalowy, który może być zastosowany również w wariancie zagospodarowania 1.

Warianty zagospodarowania różnią się ilością zaprojektowanych domków:

  1. wariant 1 zawiera łącznie 20 domków w zabudowie jednorodzinnej wolnostojącej, zabudowie bliźniaczej i szeregowej
  2. wariant 2 zawiera łącznie 16 domków w zabudowie jednorodzinnej wolnostojącej i bliźniaczej.


Dla przedmiotowego opracowania zlecone zostało wykonanie opinii geotechnicznej, określającej warunki wodne dla zabudowy mieszkaniowej.

Schemat punktów badań odpowiada głębokości odwiertów, odpowiednio: (3)

  1. 6,0 m ppt dla budynku mieszkalnego
  2. 4,0 m ppt, dla drogi wewnętrznej

Wizualizacja zagospodarowania (4) (5) (6) (7) (8) (9) (10) (11)

Wizualizacja elewacji (12) (13) (14) (15) (16) (17)


Przekroje (18) (19) (20) (21)


Proponujemy współpracę w zakresie:

  1. Projekty architektoniczno – budowlane, z branżami:
    1. konstrukcyjną i drogową,
    2. instalacjno elektryczną
    3. instalacjno sanitarną
  2. Inspektor nadzoru
  3. Kierownik budowy
  4. Kierownik robót
  5. Inwestor zastępczy
Kontakt

tel. +48 601 406 703
e-mail: kontakt@radostowicepark.pl