Rezydencja w parku
Do wykorzystania / zagospodarowania

Ogrodzenie:

  1. część wschodnia od strony północnej – płyty betonowe do ułożenia na gruncie, słupki betonowe poczwórnie zbrojone, siatki stalowe ocynkowane o wysokości 1,60 m jako kosze gabionowe, do wypełnienia kamieniem (1)
  2. część wschodnia od strony południowej – płyty betonowe do ułożenia na gruncie, słupki stalowe, sztachety modrzewiowe ( 1500 szt., sezonowane przez 15 lat ), oraz niskie siatki stalowe, ocynkowane, do wypełnienia kamieniem gabionowym, jako podmurówka (2) (3)
Dom rekreacji indywidualnej


UWAGA! Dla tego podrozdziału, przywołanym fragmentom projektu oraz wizualizacjom, przypisana jest klauzula praw autorskich.


Opracowany został projekt „Domu rekreacji indywidualnej”. Wyjątkowo użyteczny na potrzeby własne, lub przy wybudowaniu zasadniczego domu mieszkalnego (rezydencji), idealny jako dom gościnny. (4) (5) (6)

Projekt wypełnia wszystkie warunki (powierzchnia w obrysie zewnętrznych elewacji nie przekracza 70 m²), wystarcza więc procedura „na zgłoszenie”.

Zalety

brak konieczności wykonywania projektów branżowych, uzgadniania warunków przyłączenia mediów, opracowania i spełniania wymogów certyfikacji energetycznej, brak konieczności przeprowadzania odbiorów branżowych, końcowych, uzyskiwania pozwolenia na użytkowanie.

Korzyść zastosowanych rozwiązań:

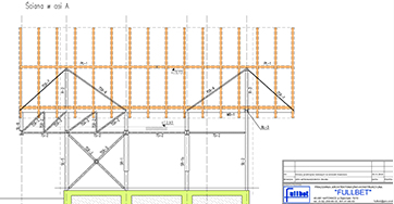
projekt opracowany do wybudowania w formie „konstrukcji szkieletowej, stalowej”, przez co posiada wiele zalet, m. in.: (7)

  1. cała przestrzeń wewnętrzna budynku (parter, poddasze), nie posiada żadnego wewnętrznego podparcia (!) typu słupy, ściany nośne, co daje w przypadku parteru otwartą przestrzeń do aranżacji w obszarze 7,40 m x 8,40 m ~ 60,0 m² (8)
  2. taka sama przestrzeń pod parterem do wykorzystania pod rekuperator cieplny,
  3. wyjątkowo lekka konstrukcja nośna budynku, łącznie nie przekracza ciężaru 4 T, bez uwzględnienia ciężaru więźby dachowej – materiał w całości zabezpieczony (9) (10)
  4. stropy wykonane w technologii „stropu zespolonego”, zabezpieczone blachy COFRASTA 40 (obecnie dostępne jedynie na rynku francuskim) (12) (13)
  5. przestrzenie pełne ścian do wypełnienia płytami warstwowymi, o łącznej grubości wełny mineralnej od 300 mm + okładziny elewacyjne wewnętrzne (np. płyty cementowe z włóknami), okładziny zewnętrzne (deska, cegła elewacyjna, itp.), wraz z zastosowaniem dwukomorowej ślusarki okiennej i drzwiowej, daje budynkowi wysoce korzystne cechy termoizolacyjne – ochrona przed przegrzewaniem w lecie, zabezpieczenie przed utratą ciepła w zimie.,
  6. prosty układ architektoniczny typu „stodoła” korzystnie wpisuje się w otoczenie lasu (14) (15) (16) (17) (18)
Przydomowe SPA


W proponowanej strefie rekreacji indywidualnej, istnieje możliwość zorganizowania przydomowego SPA. W dyspozycji dwa kontenery wykonane z szczelnego, wibrowanego betonu (19) (20)

Zakresem adaptacji jest:

  1. zabudowa wewnątrz drewnianego wykończenia (boazeria, stanowiska dla użytkowników) (21)
  2. montaż bezpiecznej stolarki drzwiowej i okiennej (22) (23)
  3. montaż elewacji zewnętrznej, w wykończeniu drewnianym
  4. wyposażenie obu kontenerów/saun, w ogólnie dostępne instalacje odpowiednio
    1. sauna sucha (fińska) z wysoką temperaturą ( 80 - 120 °C ) i niską wilgotnością ( 5 - 20 % ), dla celów głębokiego rozluźniania mięśni i intensywnego pocenia się. Zalecana nagrzewnica elektryczna z cyrkulacją.
    2. sauna mokra (parowa) z niższą temperaturą ( 45 - 60 °C ) i wysoką wilgotnością (do 100%), działająca łagodnie (wskazana dla osób z dolegliwościami kardiologicznymi), nawilżająca skórę i wspierająca drogi oddechowe. Do zastosowania zewnętrzna, regulowana wytwornica parowa zasilana z butli propan-butan
  5. dla obu saun, alternatywą balii służących do schłodzenia organizmu celem zahartowania, jest zastosowanie pionowych komór zanurzeniowych, 6 szt., oddzielnie dla każdego użytkownika, poprawiając tym walory higieniczne.

Komory można wyposażyć w dodatkowe dysze wysokociśnieniowe, dające efekt „jacuzzi”, z możliwością użytkowania ich, w celach schłodzenia organizmu, w upalnym okresie letnim. Całość do zabudowania w nieodległym otoczeniu domu rekreacji indywidualnej, w formie osłoniętej z trzech boków, wiaty. (24)

Do wykorzystania słup o wysokich właściwościach wytrzymałościowych (włókna węglowe), celem objęcia całości nieruchomości dozorem elektronicznym (czujniki ruchu, monitoring, doświetlenie). Wierzchołek słupa można zwieńczyć konstrukcją bocianiego siedliska. (25) (26) (27)


Przykładowa wizualizacja architektury wewnętrznej nieruchomości (28) (29) (30) (31) (32)

Wnioski z przedstawionej propozycji (33)

Kontakt

tel. +48 601 406 703
e-mail: kontakt@radostowicepark.pl